1/40

HUB, 

making Heimat*

Wir erleben zurzeit ein unschönes Déjà-vu: Wie 2015 strömen unzählige entwurzelte Menschen zu uns und suchen nach einer Bleibe. Begrüßung und Aufnahme in unserer Gesellschaft scheinen augenscheinlich besser zu funktionieren als damals. Dennoch bleibt die bange Frage, wie es weitergehen wird, was geschehen wird, wenn die vorübergehende Unterkunft gefunden ist. Allerorts treffen wir auf Geflüchtete, die sich gezwungen sehen, sich in eine fremde Kultur, unbekannte Traditionen und ungewohnte Wohnformen einzugliedern. Es ist an uns, nach einer Aufnahme der Geflüchteten, nun auch dafür zu sorgen, dass diese nachhaltig in unsere Gesellschaft integriert werden können.

Ein wichtiger Aspekt hierfür ist kommunikativer Natur: Gelingt es uns, einen Ort zu schaffen, wo Geflüchteten geholfen werden kann UND ein Austausch mit Einheimischen stattfinden kann, so ist sicher viel geholfen.

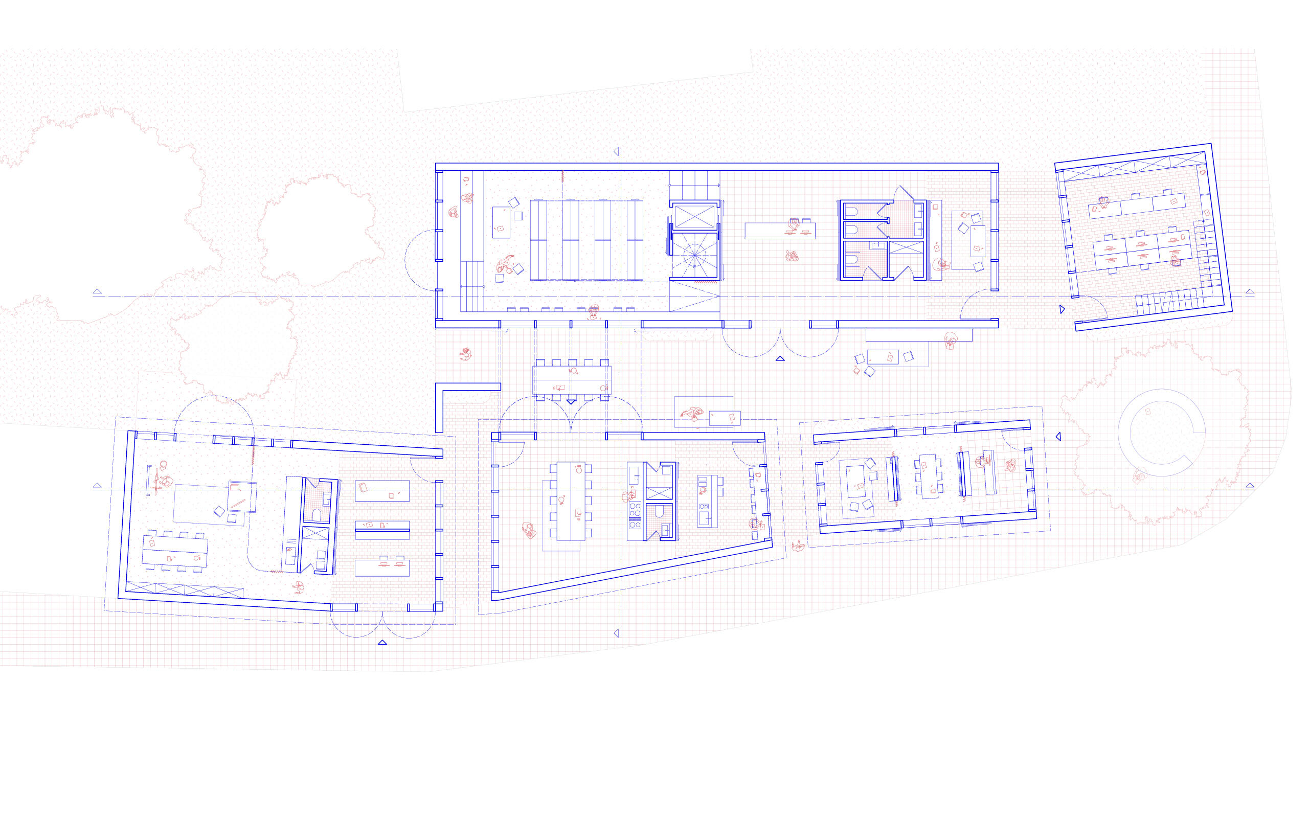
Genau das soll mit dem Entwurfsprojekt HUB entstehen. Ein Ort des Austausches und der Kommunikation nicht nur unter Geflüchteten, sondern auch für und mit den Bewohnern der Stadt München. Ein Ort für eine gemeinsame Tasse Tee und ein Kennenlernen zum einen, aber auch ein Ort der Hilfe für alle, eine Art niedrigschwellige Alternative zum Gang zum Amt.

In diesem Zusammenhang wir uns bei EDa in diesem Semester verschiedenen Strategien im Umgang mit Bestand untersucht, denn „Die Stadt ist gebaut. Sie muss nicht neu- sondern umgebaut werden“ (Ursula Koch)

Teilnehmer: Afra Brucker, Franziska Baumgartner, Fritz Buziek, Hannah Jehle, Luisa Pfeufer, Mete Ay, Pauline Bayerstorfer, Sabine Röhrl, Stella Bertermann, Zade Berisha, Ziad Shahet 

Lehrstuhl:Entwurf und Darstellung
Lehrende:Prof. Katja Knaus, Georg Brennecke