Werklerei,
Lisa Robin
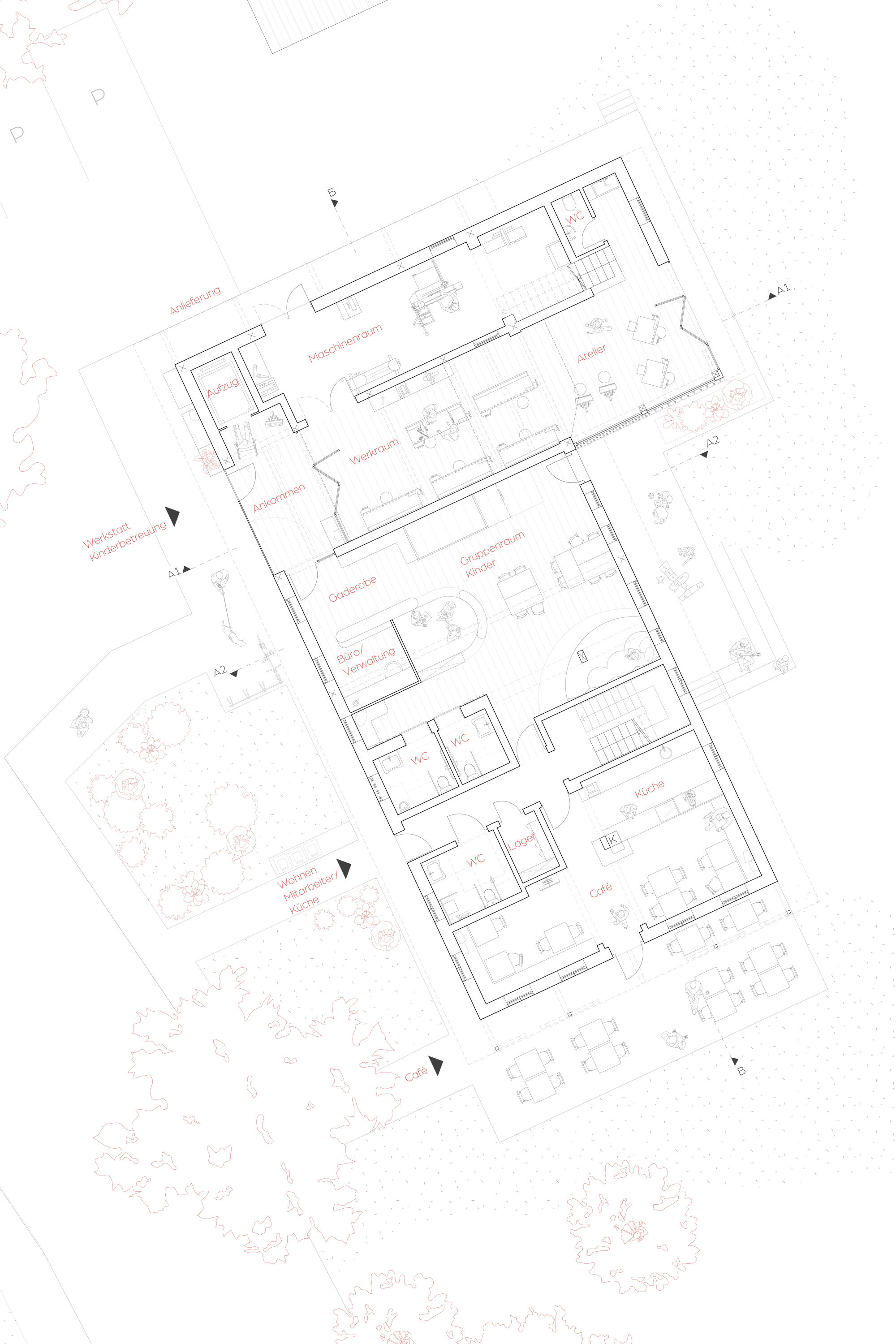
Einem 120 Jahre alten Bauernhaus in Grafing soll im Zuge des Entwurfes neue Beachtung geschenkt werden. Von der ehemaligen Wohnnutzung wird es zu einem Ort der Kinderbetreuung und handwerklicher Begegnungsstätte umgenutzt und öffnet sich so dem Ort.
Als Zukunftswerkstatt verfolgt die werklerei einen neu fokussierten pädagogischen Ansatz. Insbesondere Kinder werden hier adressiert, wieder Nähe und Bezug zu dem Berufsfeld des Handwerks zu erhalten. In der Freizeiteinrichtung mit handwerklichem Schwerpunkt, bekommen sie die Möglichkeit, mit den unterschiedlichsten Materialien zu experimentieren. Sie lernen, wie sie Einfluss auf ihre Umwelt haben und wie sie diese aktiv mitgestalten können. Die Nähe zur Natur und das Arbeiten mit Naturprodukten bildet zudem die Grundlage, für ein nachhaltiges Bewusstsein und der Wertschätzung der Umwelt und ihrer Güter. Das Gebäude bietet als Traditionshaus den idealen Rahmen, um ein Begegnungsort zwischen Mensch und Handwerk zu werden.
Dabei lädt die werklerei ein, neues auszuprobieren, die Räumlichkeiten für eigene handwerkliche Projekte zu nutzen oder den Austausch untereinander zu fördern.
Die Seminar- und Arbeitsräume des Entwurfes bilden die Bühne für die unterschiedlichsten Kurse und Projekte. Auch in Kooperation von regionalen Handwerksbetrieben und Künstlern können spezielle Themenschwerpunkte in den Räumlichkeiten des Bestandes stattfinden. Dabei steht ein öffentlicher Bereich allen Altersklassen offen eigene Projekte anzugehen oder beispielsweise Kurse zur Fahrradreparatur, zum Löten, oder etwa zum Messerschleifen zu besuchen. Durch die Möglichkeit einer Werkstattbeteiligung wird zudem ein Austausch der Kreativschaffenden gefördert. Das gemeinsame Werken stärkt die Nachbarschaft und fördert die Integration. Der Rahmen und das Angebot wird dabei von den Mitarbeitern, Kursleitern und ihren Hintergründen, sowie ihrer beruflichen Vergangenheit beeinflusst. Auch die benachbarten Schulen und Kindergärten sind eingeladen, in Kursen und Workshops das Angebot der werklerei mit zu nutzen. So kann der Wandertag zu einem ganz besonderen Erlebnis werden wenn die Kinder ihre Werke am Ende des Tages mit nach Hause nehmen und Stolz ihren Eltern zeigen können.
Der großzügige Garten des Bauernhauses wird ebenfalls Teil des Entwurfes. So können neben dem festen Außenbereich des Kindergartens, bei schönen Wetter auch einige Aktivitäten und Kurse nach draußen verlegt werden.
Mit Elterncafés, Veranstaltungsräumen, oder einer Zweitnutzung zum Seniorentreff kann eine Kindertageseinrichtung eine ganze Nachbarschaft prägen. Dabei rücken die Orte der Kinderbetreuung als Bildungseinrichtungen in den Vordergrund. Ebendiese Funktion soll auch die werklerei erhalten.
Mit einem Elterncafé werden so Familien mit eingebunden und gleichzeitig ein Ort des Austausches geschaffen.
Um den Standort im Hinblick auf Erziehermangel attraktiver zu machen, sind zwei Erzieher-/Betreuerwohnungen im Bestand vorgesehen. So kann beispielsweise auch in Zeiten von Krisen, Geflüchteten oder Menschen mit temporärem Aufenthalt die Arbeit erleichtert werden, indem ihnen gesicherter Wohnraum zur Verfügung steht.
| Projekt: | Bachelorarbeit |
| Titel: | Werklerei |
| Zeitraum: | Sommersemester 2023 |