1/13

Juno – Konsumraum für Freund:innen, für Verwandte, gegen Stigmata, 

Sabine Röhrl

In den letzten zehn Jahren hat sich die Zahl der Menschen, die bundesweit in Verbindung mit dem Gebrauch illegaler Substanzen verstirbt, mehr als verdoppelt. In München ist die Situation besonders dramatisch, auch wenn sie für große Teile der Bevölkerung unsichtbar bleibt. Deswegen hat im Juli 2023 ein breites Bündnis aus Betroffenen, Mediziner:innen, sozialen Trägern, Gewerkschaften und Kommunalpolitiker:innen aus FDP, SPD, GRÜNE, LINKE und Rosa Liste eine Petition vorgestellt, die die Einrichtung von Drogenkonsumräumen in Bayern erwirken will. 

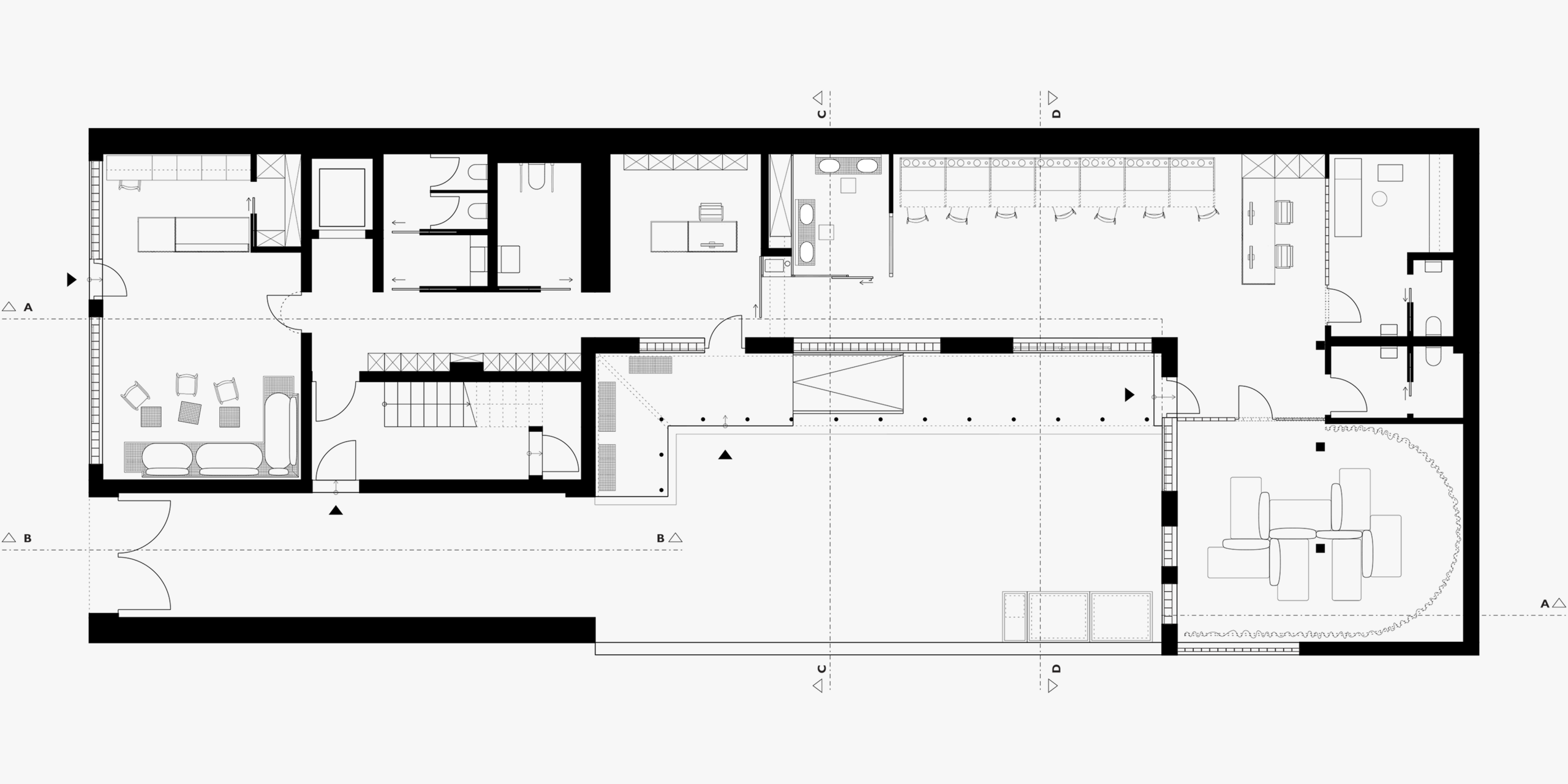
Als Reaktion darauf soll in einem leerstehenden, dreigeschossigen Nachkriegsbau in der Schwanthalerstr. 67 der integrierte Drogenkonsumraum „Juno“ entstehen. Hier können Menschen, die an einer substanzgebundenen Abhängigkeitserkrankung leiden, unter Aufsicht mitgebrachte Substanzen intravenös oder inhalativ konsumieren. Falls es infolgedessen zu einem Drogennotfall kommt, leisten geschulte Mitarbeiter:innen sofort Erste Hilfe und können einen tödlichen Verlauf verhindern. Gleichzeitig vermindert die Ausgabe steriler Konsumutensilien und die Sensibilisierung für „Safer-Use“ Praktiken mögliche Folgeschäden. Im Anschluss haben Klient:innen die Möglichkeit sich in den Ruheraum zurückziehen oder sich im Kontaktladen mit Sozialarbeiter:innen auszutauschen. Zusätzlich sind im ersten Obergeschoss des Bestandsgebäudes zwei Beratungsstellen und ein Sprechzimmer für medizinische Anliegen verortet. 

Die Farb- und Materialwahl unterstützt vor allem den niederschwelligen und lässigen Charakter der Einrichtung und wird gleichzeitig höchsten Ansprüchen an Hygiene und Reinigung gerecht. Satinierte Glasbausteine erhöhen im Erdgeschoss bestehende Fensteröffnungen in den Bereichen, wo durch die neue Nutzung ein mehr an Privatsphäre erforderlich ist. Die deswegen notwendigen, neuen Fenster sind in einer kontrastierenden Rahmenfarbe lackiert und orientieren sich in ihrem Format nur teilweise an den darüber liegenden Sprossenfenstern. Dadurch entsteht in der Straßenfassade ein Bruch, der den Widerspruch von kleinbürgerlicher, traditioneller Architektur und liberaler, moderner Nutzung baulich sichtbar macht.

Bachelorarbeit:
Sommersemester 2024: