Von Wand zu Wand,
Viele Aspekte in der Architektur sind messbar oder können überprüft werden: erforderliche Maße und Flächen, Anordnung und Größe von Mobiliar, die Sinnfälligkeit von Konstruktionen, das Nutzerverhalten oder die Energieeffizienz. Wie aber ist es um das emotionale Erleben von Räumen bestellt? Wie messen wir den Wohlfühlwert von Räumen? Wie reagieren wir auf Helligkeit oder Farbigkeit eines Raumes? Was alles prägt die Stimmung eines Raumes und wie können wir sie steuern? Wie definieren wir Gemütlichkeit, Intimität, Geborgenheit oder Anonymität und Kälte, wenn wir über die Qualität von Räumen sprechen?
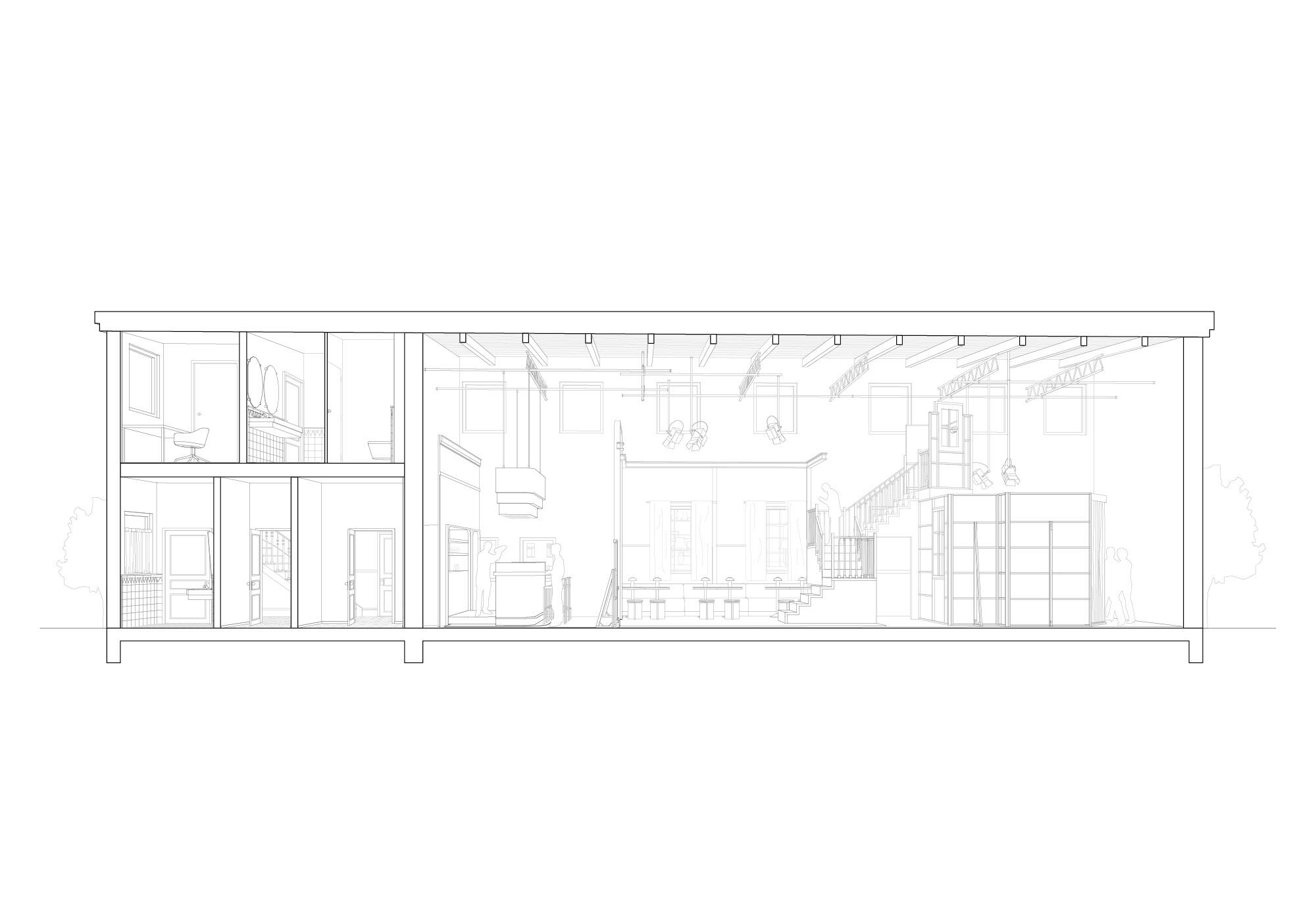
Die Entwurfsaufgabe "Von Wand zu Wand" untersucht Atmosphären in (gebauten) Räumen vergleichend in Film, Kunst und Architektur unter dem Schwerpunkt Materialverwendung und Materialwirkung. Letzteres wird insbesondere in Zusammenklang mit den vielschichtigen Wechselwirkungen zwischen dem Raum und seinem Nutzer, sowie den unterschiedlichen Aspekten, die Atmosphäre beeinflussen, untersucht. Neben Licht, Raumproportionen und architektonischen Elementen können das auch Geräusche, Gerüche, Objekte oder Personen im Raum sein.
Als Einstieg in das Thema setzen sich die Studierenden mit Arbeiten von Filmemachern und Künstlern auseinander, deren Werk ohne eine intensive Auseinandersetzung mit Raum nicht zu denken wäre. Ausgehend von diesen Werken oder aber einzelner spezifischer Aspekte der Arbeiten wird ein architektonisches Konzept und die spezifische Atmosphäre einer Bar entwickelt. Diese Bar wird im Ausgehviertel Glockenbach in einem Bestandsgebäude im Grünen nahe des Südfriedhofs verortet. Das zweigeschossige Gebäude wurde bis zuletzt von der Ecclesia Kirche München genutzt und sucht eine neue Nutzung. Durch die leicht von der Straße rückversetzte Lage des Gebäudes im Park werden zahlreiche sehr unterschiedliche Konzepte für ein belebtes Nachtleben denkbar. Die Bearbeitung des Projektes erfolgt in Teams à jeweils 2 Studierenden.
Studierende:
Simon Gabriel Burkes, Jin-Seon Lee, Alev Beyza Ay, Pia Fischer, Tomy Nguyen, Anna-Lena Rückl, Jasmin Zimmermann, Hannah Geisler, Sophie Parthesius, Lili Schreiber, Kia Wieters, Katharina Melody Arhelger, Mathis Aussems, Maria Fuchs, Hannah Gabler, Gläser Luca, Madleine Rathberger, Nicholas Tümmers und Ludmilla Zacherle.
| Lehrstuhl: | Entwurf und Darstellung |
| Zeitraum: | SOSE 2025 |
| Lehrende: | Prof.in Katja Knaus und Georg Brennecke |