The Ant House,
Alicia Waibel
Wie müssen Wohnmodelle der Zukunft beschaffen sein – und was heißt „innovatives Wohnen“? Wie wollen wir wohnen, wo können wir uns einschränken, was können wir teilen, was nicht? Der knappe Wohnraum, gerade in den Metropolen zwingt uns dazu Wohnen neu zu hinterfragen. Dabei bietet gemeinschaftliches Wohnen, also ein Zusammenleben bei dem man manche Funktionen teilt und somit mehr Raum und Möglichkeiten für anderes schafft ein großes Potential.
Wir machen uns also auf die Suche nach mutigen neuen Wohnformen. Wie kann man persönliche Bedürfnisse und eine starke Gemeinschaft verbinden? Wie lassen sich Cluster-Wohnen, Mirco-Wohnen, Town-Houses, offene Lofts und klassische 3-Zimmer-Wohnungen weiter- und zusammendenken? Wie müssen gemeinschaftliche Räume gestaltet werden, damit sie funktionieren können?
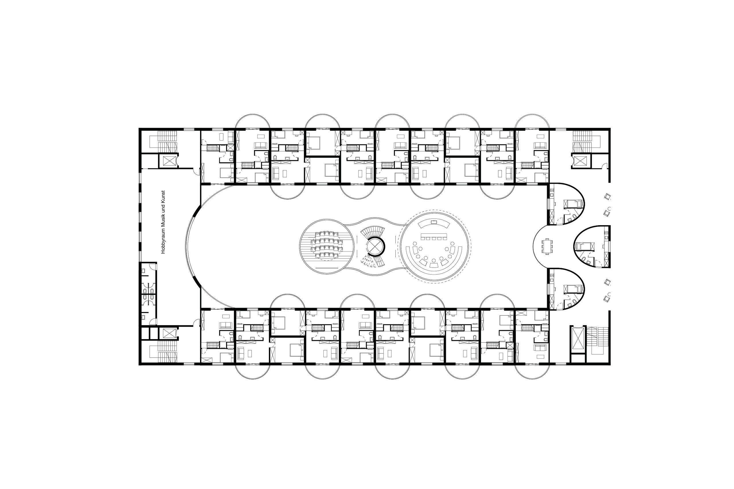
Im Entwurf „The Ant House“ für die Umnutzung eines alten Bürogebäudes in gemeinschaftliches Wohnen, lässt sich Alicia Waibel von den Strukturen und Prinzipien eusozialer Tiere inspirieren. So schafft sie ein gemeinschaftlichen Wohnkomplex, der eine besondere Stärke in generationenübergreifenden Synergien und einem großzügigen Angebot an unterschiedlich nutzbarer gemeinschaftlicher Fläche bietet.
| Lehrstuhl: | Entwurf und Darstellung |
| Lehrende: | Prof. Katja Knaus, Georg Brennecke, Karianne Fogelberg |
| Projekt: | Semesterarbeit |
| Thema: | TOGETHER! |
| Zeitraum: | WISE 2019/20 |