Together!,
Rose Broeckel
Wie müssen Wohnmodelle der Zukunft beschaffen sein – und was heißt „innovatives Wohnen“? Wie wollen wir wohnen, wo können wir uns einschränken, was können wir teilen, was nicht? Der knappe Wohnraum, gerade in den Metropolen zwingt uns dazu Wohnen neu zu hinterfragen. Dabei bietet gemeinschaftliches Wohnen, also ein Zusammenleben bei dem man manche Funktionen teilt und somit mehr Raum und Möglichkeiten für anderes schafft ein großes Potential.
Wir machen uns also auf die Suche nach mutigen neuen Wohnformen. Wie kann man persönliche Bedürfnisse und eine starke Gemeinschaft verbinden? Wie lassen sich Cluster-Wohnen, Mirco-Wohnen, Town-Houses, offene Lofts und klassische 3-Zimmer-Wohnungen weiter- und zusammendenken? Wie müssen gemeinschaftliche Räume gestaltet werden, damit sie funktionieren können?
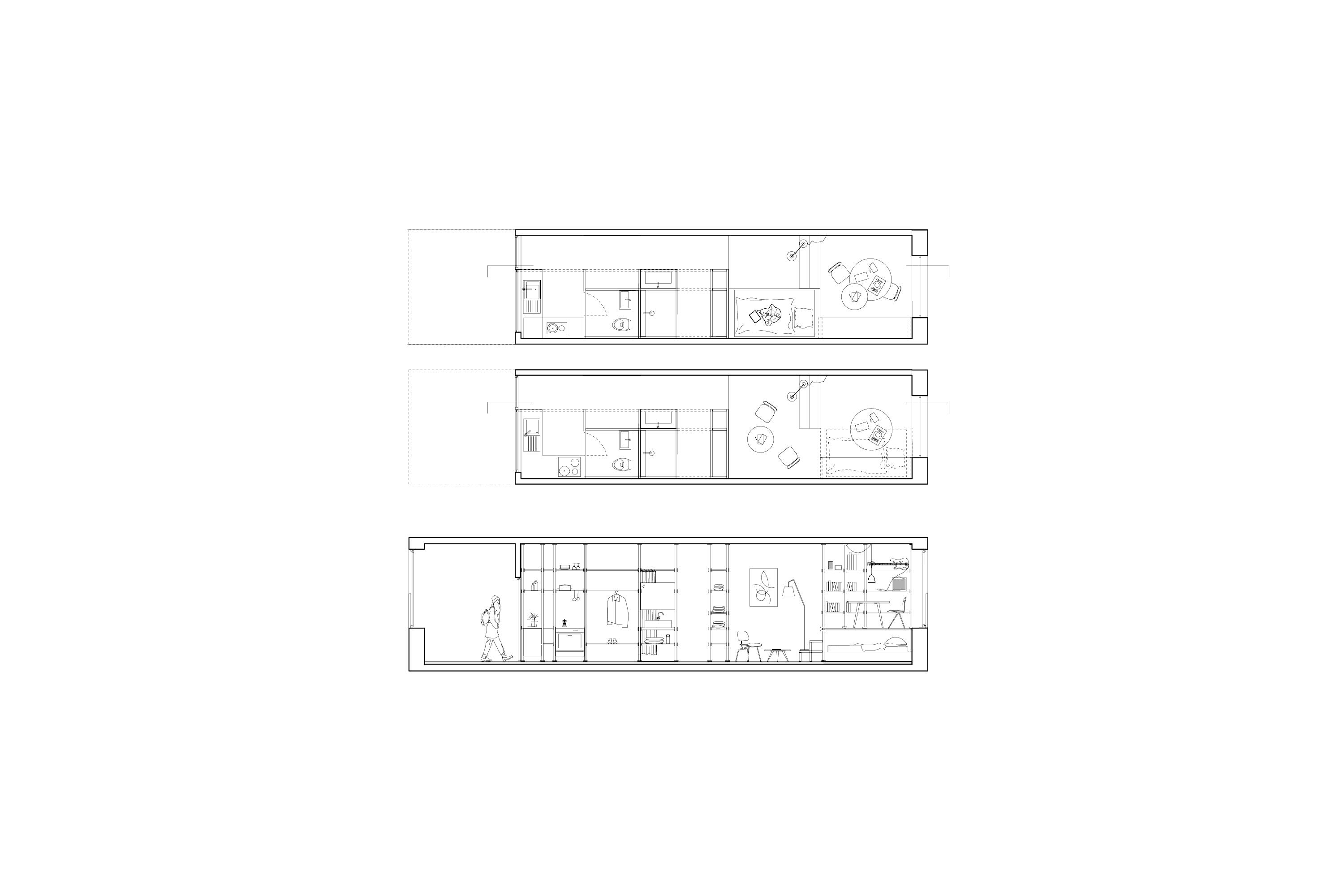
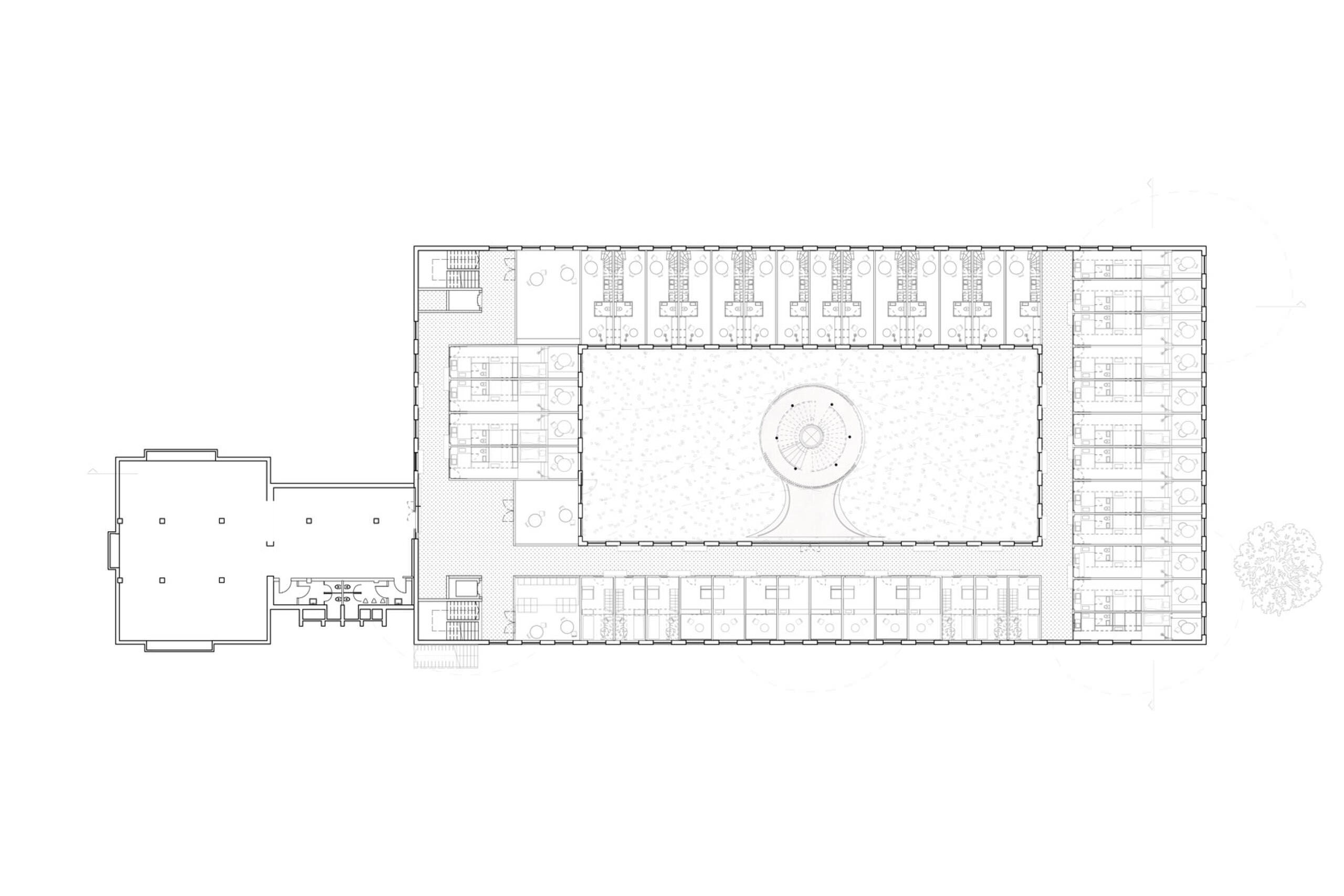
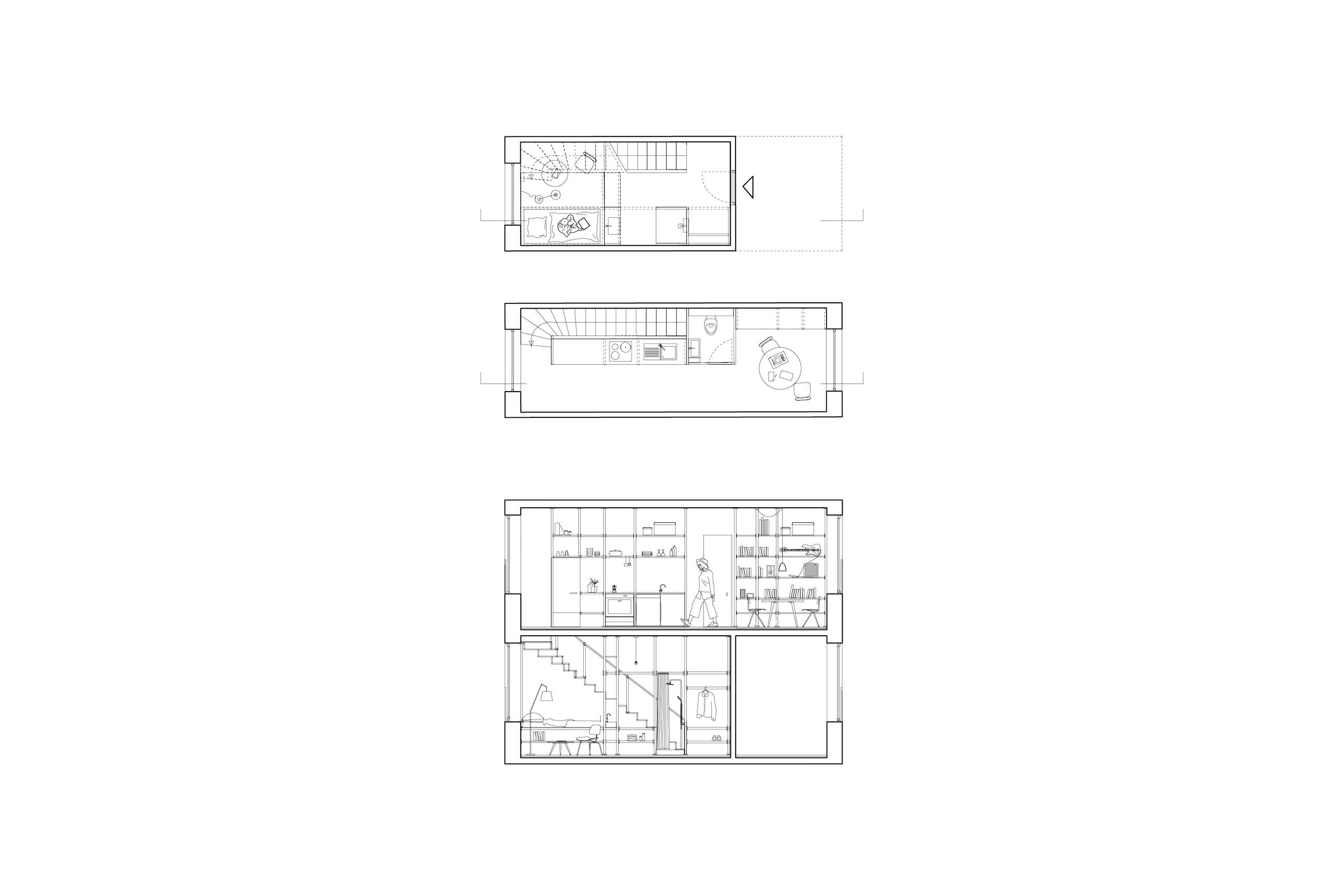
In dem Entwurf für die Umnutzung des früheren Gesundheitshauses in München läßt Rose Brökel das strenge Raster an Wohneinheiten durch einen „Sinnenbaum“ aufbrechen, der zum einen als Erschließung, zum anderen als Orte der Gemeinschaft und Kommunikation dient. Dieser „Baum“ schafft unterschiedliche, nutzungsspezifische Räume und dadurch einen freizügigen Gegenpol zur sonst flächenoptimierten Wohnbebauung.
| Lehrstuhl: | Entwurf und Darstellung |
| Lehrende: | Prof. Katja Knaus, Georg Brennecke, Karianne Fogelberg |
| Projekt: | Semesterarbeit |
| Thema: | TOGETHER |
| Zeitraum: | WISE 2019/20 |
| Studentin: | Rose Broeckel |